BIM SERVICES

Construction / IFC Drawings

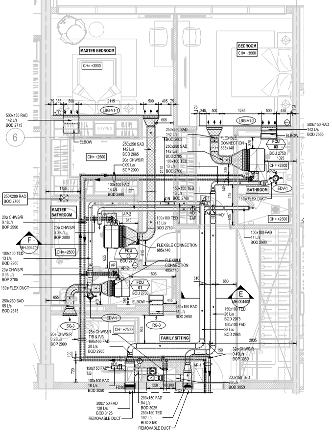
At Bimazed, “IFC” means the drawings and specifications that the project is actually built from—approved by the authority having jurisdiction and locked against casual change. We generate these construction documents directly from our coordinated BIM, so what’s on paper matches the federated model: clear, code-aligned, and field-ready. (Not to be confused with IFC the file format—Industry Foundation Classes—we can deliver that too, but “Issued for Construction” is a contract milestone.)

Our IFC sets capture technical intent and constructability: correct system sizes, routing, elevations, supports, access clearances, and maintenance zones—so trades install once, not twice. Each sheet is QA/QC’d for standards, naming, and dimensions; changes are version-controlled in your CDE, with transmittals and revision logs for auditability.

What we include in Bimazed IFC packages

  • Floor plans at specified scales with verified system sizes and annotations.

  • Schematic/riser diagrams ensuring service continuity, branch connections, and riser sizing.

  • Detail/enlarged views with typical installation details, mock-ups, and complete equipment schedules.

  • Block-out/penetration drawings showing major structural openings coordinated with MEP needs.

  • Plus: coordinated sections/elevations, mounting heights, hanger/support details, access/clearance zones, legends, notes, and sheet indexes—so the field team has everything needed to build safely, efficiently, and on schedule.

 

OUR BIM SERVICES

3D Modelling
 

Value Engineering
 

Quantity Take-Off (QTO)

Construction / IFC
Drawings

Digital Fabrication
 

Spool Drawings
 

As Built Model / Drawings

Cobie Data Services
 

Onsite BIM Support
 

Revit Family Creation
 

4D & 5D BIM Services
 

Clash Coordination